Používame cookies

Súbory cookie a ďalšie technológie sledovania používame na zlepšenie vášho zážitku z prehliadania našich webových stránok, na to, aby sme vám zobrazovali prispôsobený obsah a cielené reklamy, na analýzu návštevnosti našich webových stránok a na pochopenie toho, odkiaľ naši návštevníci prichádzajú. Viac info

REZERVOVANÉ Na predaj novostavba RD, Dubovany

Popis nehnuteľnosti

Zdieľať na Facebooku

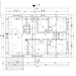
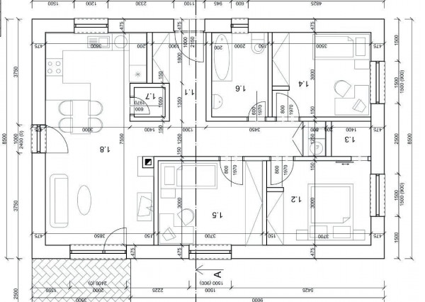
1231 - Exkluzívne na predaj posledná novostavba 4-izbového rodinného domu v obci Dubovany (13km od Piešťan). Dom je postavený z tehly Ytong na pozemku s celkovou rozlohou 400m2. Dispozične novostavba pozostáva: chodba s techn. kútom (12,11m2), izba (11,10m2), šatník (1,75m2), izba (10,50m2), izba (11,10m2), kúpeľňa s WC (6m2), špajza (1,16m2), kuchyňa s obývacou izbou (27,47m2).  Celková podlahová plocha je 82m2. Z obývačky je vstup na terasu. Dom je napojený na všetky IS (plyn, elektrina, vodovod, kanalizácia). Kúrenie je podlahové, v obývačke je predpríprava na krb. Strecha - škridla, v podkroví sa nachádza úložný priestor (sťahovací rebrík vo vstupnej chodbe). Stropy sú zo sadrokartónu zateplené 30cm minerálnou vlnou. Dom je zateplený 17cm polystyrénom, spravená fasáda. Dom sa nachádza v novej slepej uličke, kde budú celkom 4 domy - po dohode vlastníkov možno vytvoriť súkromný uzavretý areál. Tichá lokalita. Predáva sa v stave holodomu, po dohode možnosť dokončenia. V cene je aj podiel na súkromnej prístupovej ceste.

Cena je 173 000 €.

Viac informácií Vám rada poskytnem na tel. č. +421 905 248 196 alebo mailovej adrese petovska@piestanyreality.sk Teším sa na stretnutie!

Vlastnosti

Status:
aktívne
Vlastníctvo:
osobné
Plocha pozemku:
400 m2
Úžitková plocha:
111 m2
Zastavaná plocha:
111 m2
Stav:
novostavba
Počet izieb:
4
Terasa:
áno
Inžinierske siete:
áno
Voda:
áno
Kanalizácia:
áno
Voda - na pozemku - vodný zdroj:
áno
Voda - blízko pozemku - vodný zdroj:
áno
Kanalizácia - na pozemku - žumpa:
áno

Hypotekárna kalkulačka

173 000 €
Interné ID: 1231
Ulica: .
Obec: Dubovany
Okres: Piešťany
Kraj: Trnavský kraj
Druh: Domy
Typ: Predaj
Typ domu: Rodinný dom

Radi Vám poradíme

MOHLO BY VÁS
ZAUJÍMAŤ

Exkluzívne nehnuteľnosti, ktoré stoja za vašu pozornosť.
Často rozhoduje rýchlosť – nepremeškajte svoju príležitosť.