Používame cookies

Súbory cookie a ďalšie technológie sledovania používame na zlepšenie vášho zážitku z prehliadania našich webových stránok, na to, aby sme vám zobrazovali prispôsobený obsah a cielené reklamy, na analýzu návštevnosti našich webových stránok a na pochopenie toho, odkiaľ naši návštevníci prichádzajú. Viac info

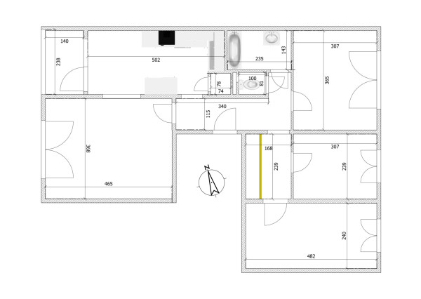
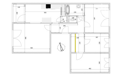
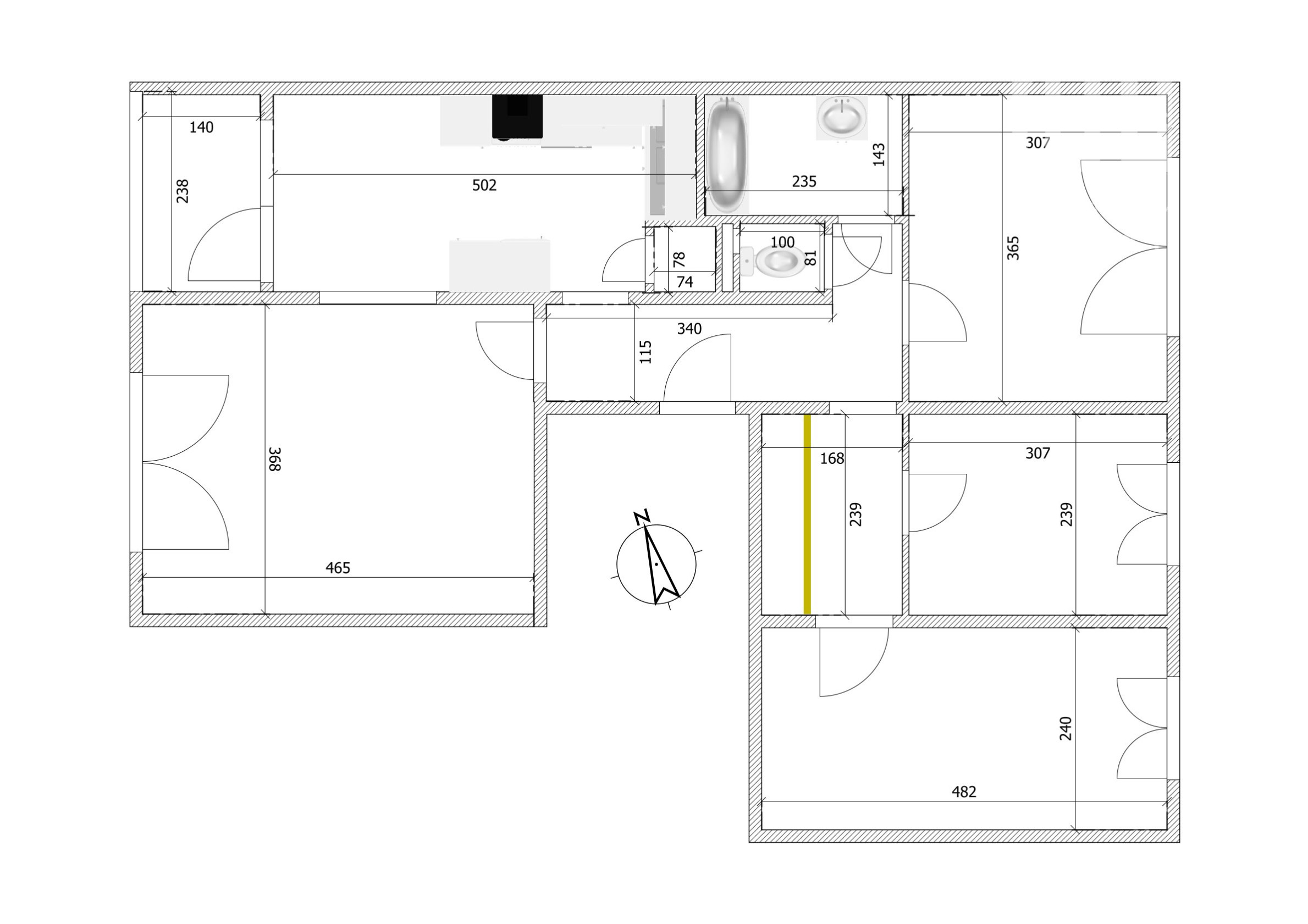
Na predaj 4-izbový byt pri Kocke, Piešťany

  • Exkluzívna ponuka

Popis nehnuteľnosti

Zdieľať na Facebooku

Exkluzívne na predaj 4-izbový, dobre riešený byt na Lipovej ulici v Piešťanoch. Byt sa nachádza na 2.poschodí, orientácia východ - západ, výmera bytu je 75 m2. Dispozícia: vstupná chodba, kuchyňa s lodžiou a špajzou, obývačka, 3 spálne, kúpeľňa a samostatné WC. Byt bol kompletne zrekonštruovaný v roku 2010, v rámci rekonštrukcie boli o. i. urobené  nové rozvody elektroinštalácie, nové rozvody kúrenia a radiátory, plastové okná, interiérové dvere z masívu, bezpečnostné dvere ADLO. V 2023 bola v byte inštalovaná klimatizácia. K bytu patrí murovaná pivnica s prípojkou na elektrinu, nachádza sa v prízemí bytovky. 

Bytový dom je po rekonštrukcii strechy, zateplený, v roku 2026 prebehne kompletná výmena stúpacích a ležatých rozvodov. 

Lokalita: Lipová ulica sa nachádza vo vyhľadávanej časti Piešťan v blízkosti Kocky. Lokalita ponúka kompletnú občiansku vybavenosť v pešej dostupnosti - obchody, služby, školy, škôlky, zdravotné stredisko, reštaurácie, kaviarne, autobusová a vlaková stanica. Má výbornú dopravnú dostupnosť, rýchly prístup do centra mesta aj na hlavné dopravné ťahy. Ulica má pokojný rezidenčný charakter a je vhodná na trvalé bývanie aj investíciu.

Cena je 165000€.

Viac informácií Vám rada poskytnem na tel. č. 0905 248 196 alebo mailovej adrese petovska@piestanyreality.sk

Teším sa na stretnutie!

Vlastnosti

Status:
aktívne
Vlastníctvo:
osobné
Úžitková plocha:
75 m2
Podlahová plocha:
75 m2
Stav:
úplne prerobený
Počet izieb:
4
Energetický certifikát:
žiadne
Typ budovy:
panelová stavba
Typ výbavy:
čiastočne vybavený
Loggia:
áno
Pivnica:
áno
Špajza:
áno
Poschodie:
2
Celková plocha:
75 m2
Počet logií:
1
Počet pivníc:
1
Vykurovanie - centrálne:
áno
Internet:
áno
Satelit:
áno

Hypotekárna kalkulačka

165 000 €
Ulica: Lipová
Mestská časť: Prednádražie
Obec: Piešťany
Okres: Piešťany
Kraj: Trnavský kraj
Druh: Byty
Typ: Predaj
Typ bytu: 4-izbový byt
Iné:

Radi Vám poradíme

MOHLO BY VÁS
ZAUJÍMAŤ

Exkluzívne nehnuteľnosti, ktoré stoja za vašu pozornosť.
Často rozhoduje rýchlosť – nepremeškajte svoju príležitosť.